1
Trailer Models
MOTORSPORTS FLOORPLANS





















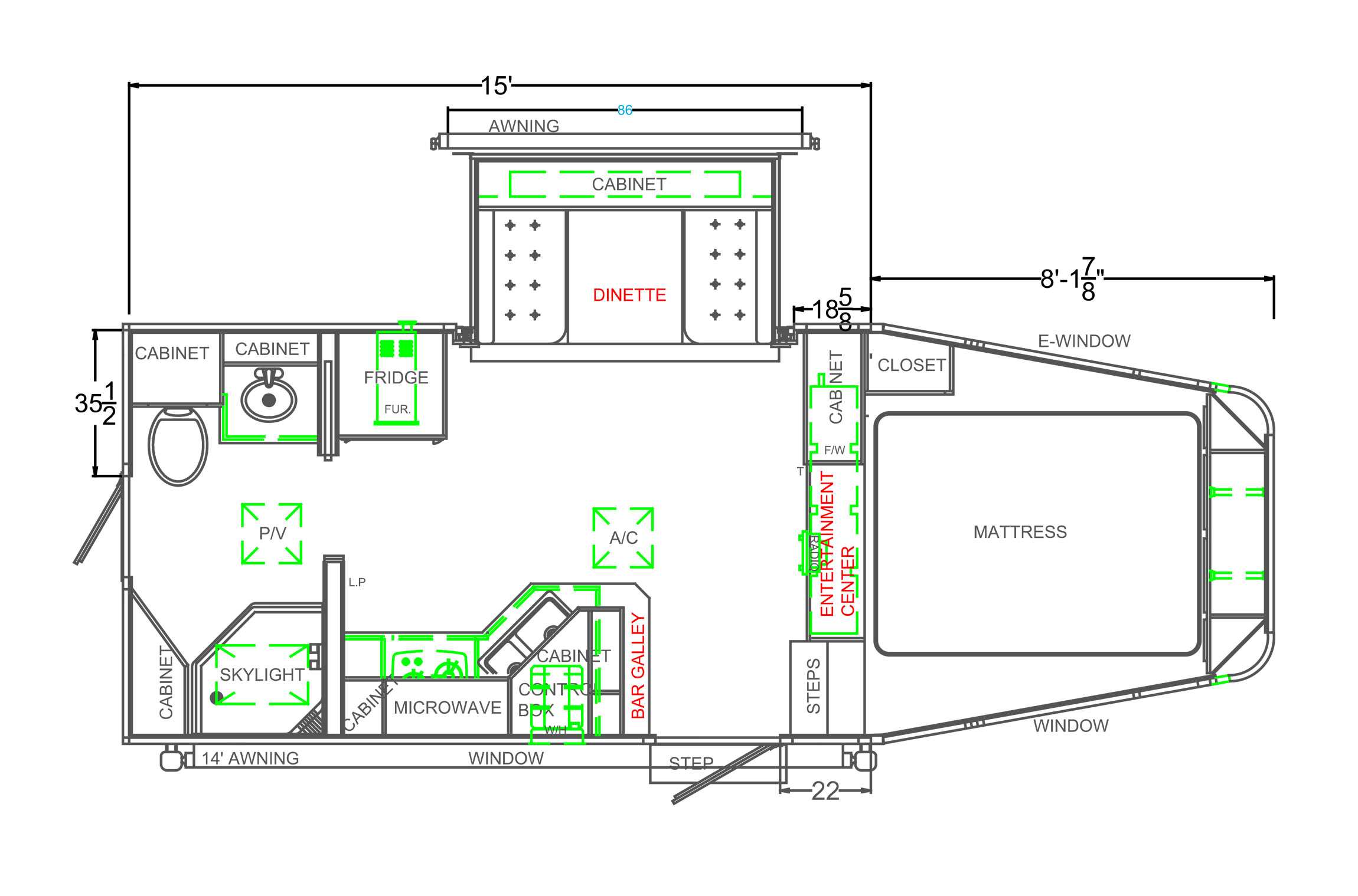
Logan Coach's living quarters provide a stylish and comfortable home away from home for you and your horses. Experience a perfect blend of modern design and luxurious features, with multiple décor packages and floorplans to choose from.